Łubianka

Na sprzedaż dom wolnostojący w trakcie budowy, położony w Łubiance. Nieruchomość sprzedawana w stanie surowym (z zaplanowanym pokryciem dachu i ociepleniem w cenie).

Szukasz domu, który możesz urządzić „pod siebie”, ale nie chcesz zaczynać budowy od zera?
Ta oferta to idealny kompromis między gotowym projektem, a swobodą aranżacji.

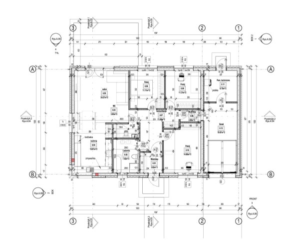
Powierzchnia zabudowy: 164,96 m2
Powierzchnia użytkowa: 134,01 m2

Projekt domu jest niezwykle funkcjonalny, a na obecnym etapie masz jeszcze możliwość przesunięcia ścianek działowych, aby idealnie dopasować wnętrze do swoich potrzeb.

W planie:

- Przestronny, słoneczny salon z jadalnią i kuchnią.
- 3 ustawne sypialnie (idealne dla dzieci, gości lub na gabinet).
- 2 łazienki – koniec z porannymi kolejkami!
- Praktyczna wiatrołap i korytarz.
- Pomieszczenie gospodarcze (przygotowane pod pompę ciepła).
- Garaż jednostanowiskowy w bryle budynku.

Technologia
Dom budowany solidnie w technologii Porotherm Dryfix, co gwarantuje ciepłe i suche ściany. W projekcie przewidziano ekologiczne ogrzewanie pompą ciepła. 

Lokalizacja:
  • Łubianka
  • Dom wybudowany jest  bezpośrednio przy ul. Toruńskiej 
  • Wjazd do domu jest od ul. Osiedlowej 
  • 12 minut samochodem do granic Torunia
  • 650 m do marketu Biedronka
  • 2,5 km do szkoły podstawowej (Zespół Szkół im. Janusza Korczaka w Łubiance)
  • W okolicy nowoczesna zabudowa jednorodzinna, przyjazne otoczenie i szybki dostęp do infrastruktury usługowej

Media:
  • przydomowa oczyszczalnia ścieków

Cena: 500 000 zł 
Cena zawiera stan domu jak na zdjęciu. (Dodatkowo w cenie zostanie położona dachówka płaska, ocieplenie domu styropian grafitowy 16cm )

Za dodatkową opłatą istnieje możliwość wykończenia domu do stanu zamkniętego deweloperskiego.

W ofercie razem z domen na sprzedaż są 2 działki nr. 190/55 i  190/58
Działki mają dostęp do drogi od ul. Osiedlowej (nieodpłatną i na czas nieokreślony służebność do drogi nr działki 190/56)


Polecam i zapraszam na prezentację,
Anna Siemińska, tel.  530 890 355



Oferujemy kompleksową pomoc w zakresie kredytowania nieruchomości. Opis oferty sporządzony jest na podstawie oględzin nieruchomości oraz informacji uzyskanych od właściciela. Może podlegać aktualizacji i nie stanowi oferty handlowej w rozumieniu Kodeksu Cywilnego. Usługa pośrednictwa jest usługą płatną w momencie zakupu nieruchomości. Prezentacje są bezpłatne.


 

Informacje Ogólne
Numer ogłoszenia:
MAG-DS-20320
Lokalizacja:
Łubianka
Rodzaj budynku:
Pow.całkowita[m2]:
164.96
Ilość pięter w budynku:
Ilość pokoi:
4
Czynsz najmu:
nie
Kaucja zabezpieczająca:
Opłaty w czynszu
Stan ofert:
Aktualna
Okna:
Instalacje:
Powierzchnia użytkowa [m2]:
164.96
Informacje o Agencie
Anna Sieminska
sieminska@magic-nieruchomosci.pl
530890355

Kalkulator dobrych zmian

Inwestycyjny i kredytowy

Każdą decyzję powinna poprzedzać kalkulacja finansowa. Dysponujemy zaawansowanymi kalkulatorami kredytowymi – dzięki niezależnemu doradcy, możesz otrzymać najkorzystniejszą ofertę z dowolnego banku. Jednocześnie nasi specjaliści w zakresie inwestycji na rynku nieruchomości z łatwością wycenią nieruchomość i obliczą prawdopodobną stopę zwrotu. Codziennie w naszej pracy wykorzystujemy niezbędne narzędzia i wiedzę, żeby maksymalizować zyski klientów. Oblicz swoje możliwości podczas bezpłatnej konsultacji.

Przelicznik inwestycji

Koszt inwestycji

500000.00 zł

Okres wynajmu

Kwota wynajmu

Potencjalny przychód

Potencjalny dochód

Masz pytania?

Skontaktuj się z nami i dowiedz się więcej